Christiania West – 6 Personen
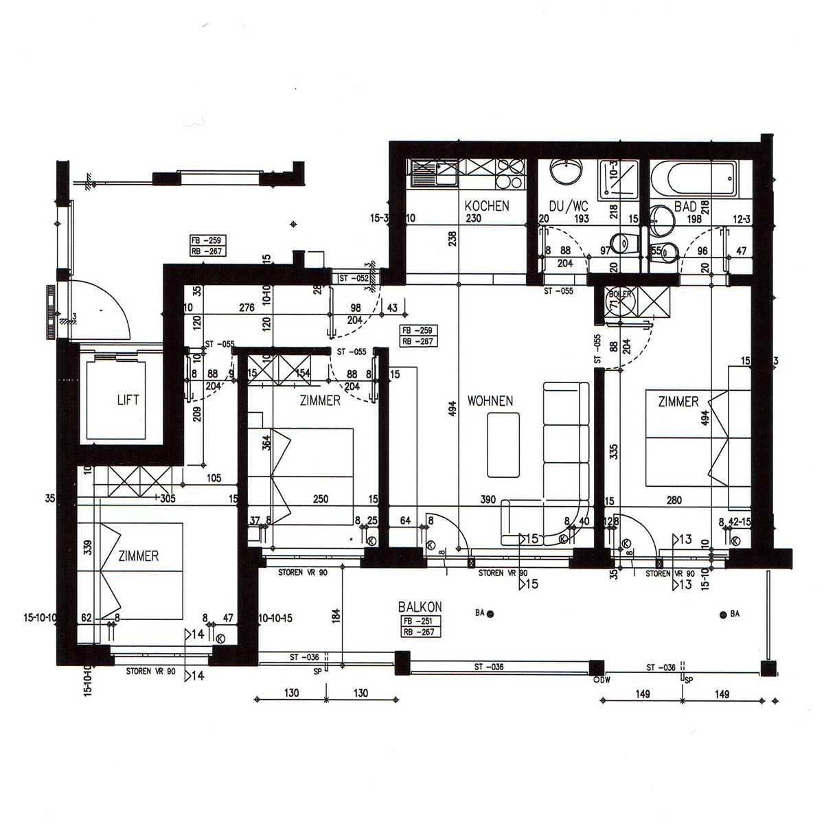
Die 4 1/2-Zimmer Ferienwohnung „Christiania West“ bietet auf einer Wohnfläche von 85 m2 eine offene Küche, Wohn-/Esszimmer, 3 Doppelschlafzimmer, Dusche/WC, Bad/WC und einen 19 m2 grossen Südbalkon.
Die 4 1/2-Zimmer Ferienwohnung „Christiania West“ bietet auf einer Wohnfläche von 85 m2 eine offene Küche, Wohn-/Esszimmer, 3 Doppelschlafzimmer, Dusche/WC, Bad/WC und einen 19 m2 grossen Südbalkon.